BAUHERR Hansestadt Rostock
BRUTTO-GRUNDFLÄCHE (BGF) 280 m2
STATUS 1.Preis Wettbewerb | in Planung
mit Planorama Landschaftsarchitektur und heinemeyerbeck ARCHITEKTEN BDA
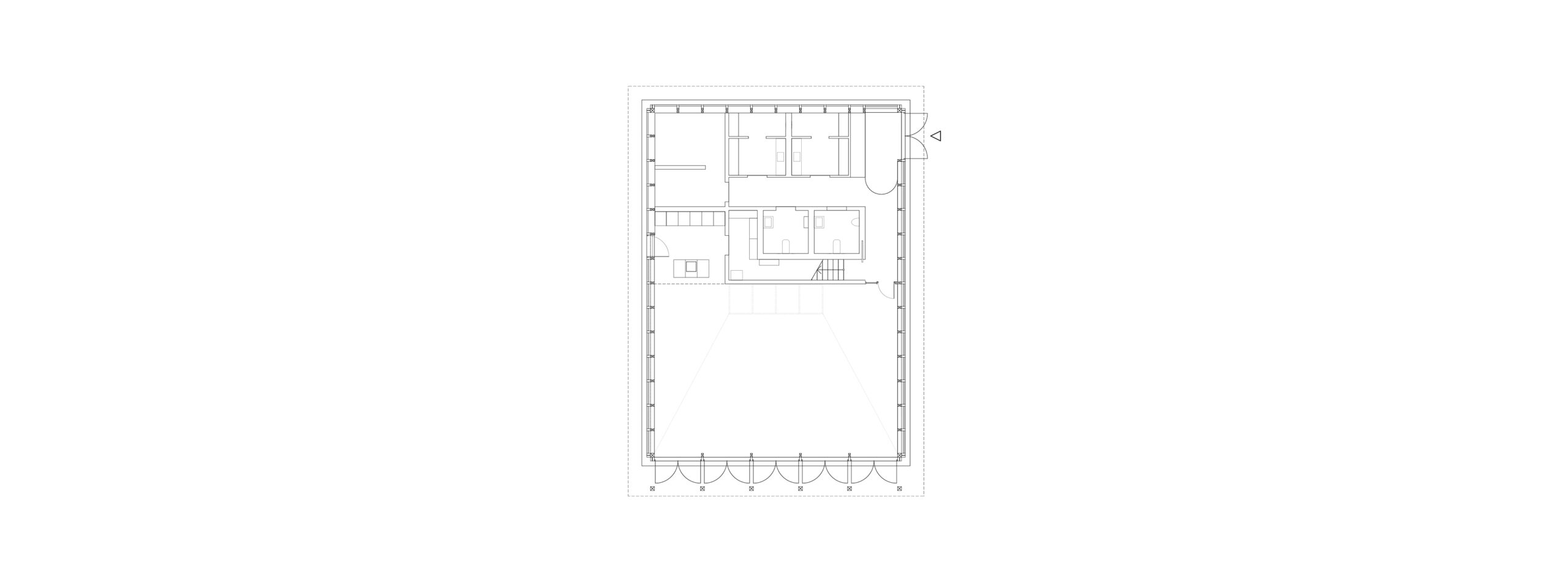
Im Rahmen der Durchführung der Bundesgartenschau 2025 nutzt die Stadt Rostock das Potential, konzentriert ein umfassendes Entwicklungskonzept für die Innenstadt rund um die Unterwarnow umzusetzen. Als Teil der umfassende Neugestaltung des Areals entsteht das neuen Clubhauses für den See- und Segelsportverein der Hansestadt Rostock e.V.. in unmittelbarer Nachbarschaft zum denkmalgeschützten Alten Fährhaus. Das Clubhaus öffnet sich großzügig zur vorgelagerten Terrasse und bietet durch seine erhöhte Lage einen weiten Blick auf die Marina sowie die Rostocker Stadtsilhouette. Im rückwärtigen Bereich wird der Vereinsraum durch eine große Dachöffnung stimmungsvoll beleuchtet.






