BAUHERR Kreisstadt Bad Waldsee
BRUTTO-GRUNDFLÄCHE (BGF) 2.900 m2
STATUS Wettbewerb
mit heinemeyerbeck ARCHITEKTEN BDA
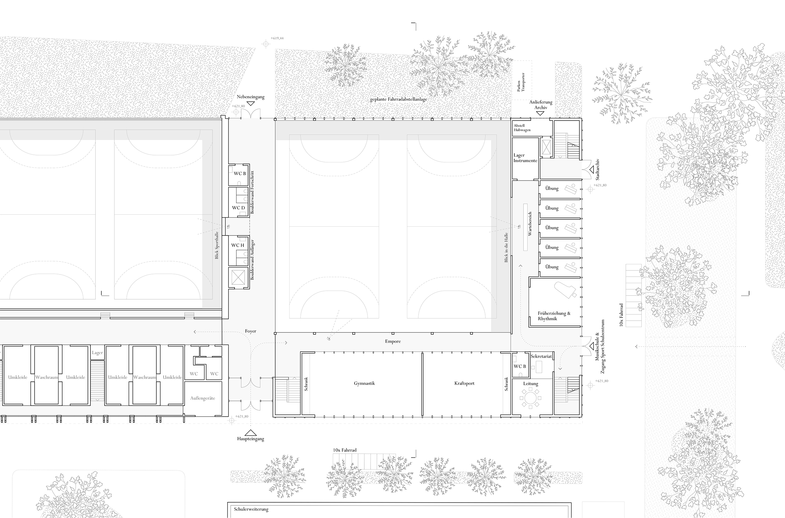
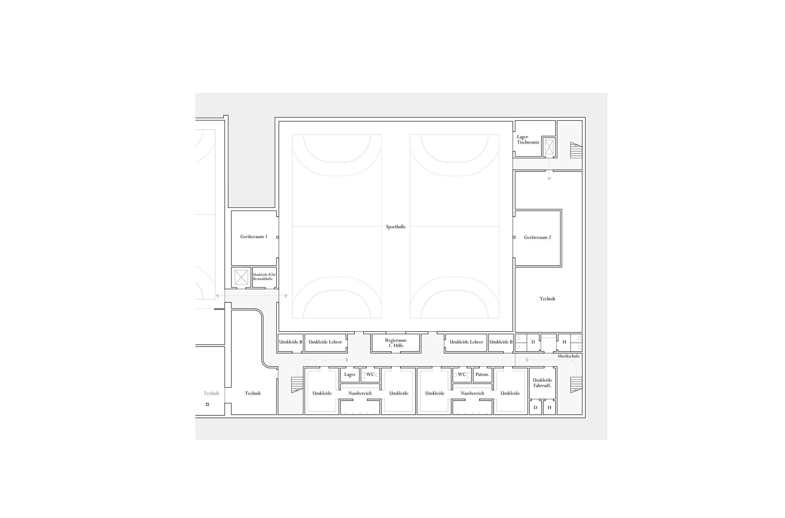
Die neue 2-Feld Sporthalle am Bildungszentrum Döchtbühl erweitert die bestehende Dreifeldhalle und entwickelt deren bauliche Logik weiter. Neben der Sporthalle beherbergt der Neubau eine Jugendmusikschule sowie ein Stadtarchiv. Diese sind in einem zweigeschossigen Riegel zum Campusplatz hin untergebracht, der einen städtebaulich markanten neuen Hochpunkt bildet.






