BAUHERR Hansestadt Rostock
BRUTTO-GRUNDFLÄCHE (BGF) 330 m2
STATUS 1.Preis Wettbewerb | in Planung
mit Planorama Landschaftsarchitektur und heinemeyerbeck ARCHITEKTEN BDA
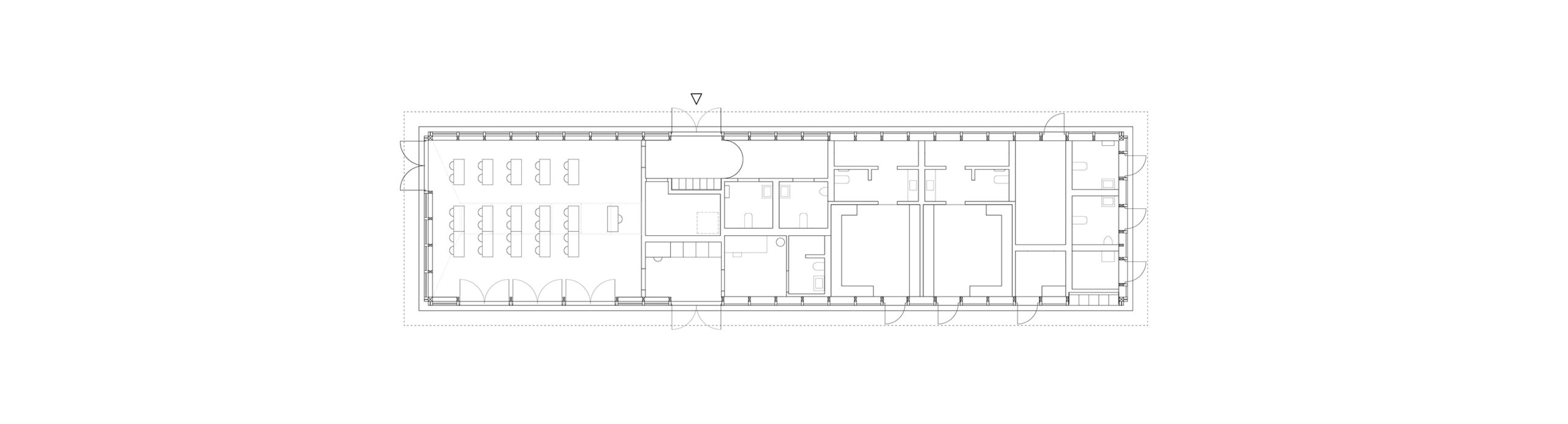
Im Rahmen der Durchführung der Bundesgartenschau 2025 nutzt die Stadt Rostock das Potential, konzentriert ein umfassendes Entwicklungskonzept für die Innenstadt rund um die Unterwarnow umzusetzen. Als Teil der umfassende Neugestaltung des Areals entsteht ein am Strand der Warnow gelegenes Multifunktionsgebäude. Das auch als Schulungszentrum für Wassersport genutzte Haus erinnert durch seine langgestreckte Bauform an ein im Sand liegendes Stück Treibholz. Das Gebäude umfasst einen großzügigen Schulungsraum sowie weitere Räume, die dem geplanten Strandbad an der Warnow als Umkleiden und WC-Anlagen zur Verfügung stehen.






