AUSLOBER Verbandsgemeinde Liebenwerda für die Stadt Falkenberg/Elster
BRUTTO-GRUNDFLÄCHE (BGF) 840 m2
STATUS 1.Preis Wettbewerb | in Planung
mit Planorama Landschaftsarchitektur
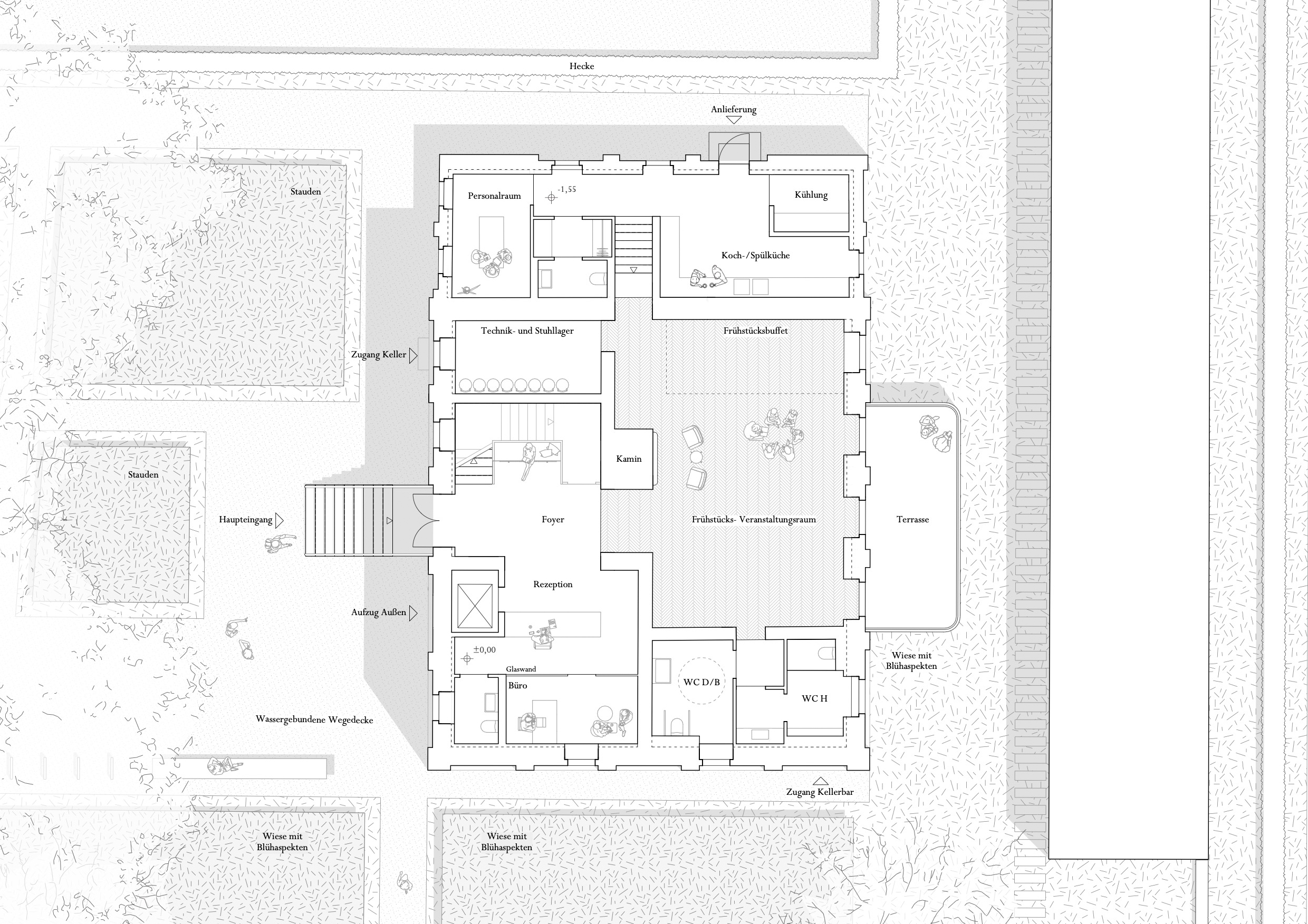
Der denkmalgeschützte Stadtpark Falkenberg/Elster wird durch eine landschafts- und architektonische Neugestaltung in seiner Attraktivität gesteigert. Die alte Brennerei wird in ein Hotel mit Räumlichkeiten für kleinere Veranstaltungen sowie einer Stadtinformation umgebaut.





